
KF型压力表开关 PDF资料下载 查看大图及参数说明
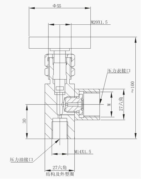
KF型压力表开关是小型的截止阀或节流阀,用来切断压力表和油路的连接或调节开口度大小。它是有阻尼作用可减轻压力表急剧跳动,防止损坏,也可当作一般小流量的截止阀或节流阀使用。
压力表开关有直接和间接连接二种,前者是压力表和开关直接连接,后者通过管道相互连接。
型号说明

技术参数

| 型号 | 公称通径 | 压力 | M |
| KjF-L8H | 8(mm) | M14×1.5 | 35 | M14×1.5 |
| KzF-L8H | M10×1.5 |
| KF-L8/12E | M12×1.25 |
| KF-L8/14E | M14×1.5 |
| KF-L8/20E | M20×1.5 |